Кратко описание
Кухня Сити 9161 впечатлява със своя съвременен дизайн и стилна комбинация от матово синьо и топъл дървесен термоплот Мъглявина. Изработена от висококачествен МДФ, тя предлага плавно затваряне на вратите, LED осветление, както и възможност за вграждане на мивка и уреди. Съчетание от елегантна визия и практичност, тази кухня е идеална за всеки модерен дом, който цени функционалността и детайла.
Предимства:
- Модерен дизайн в стилна цветова комбинация
- Плавно затваряне на вратите
- Възможност за вграждане на мивка и уреди
- Функционални модули с оптимално разпределение
- Изработена от висококачествен МДФ
Долен ред:
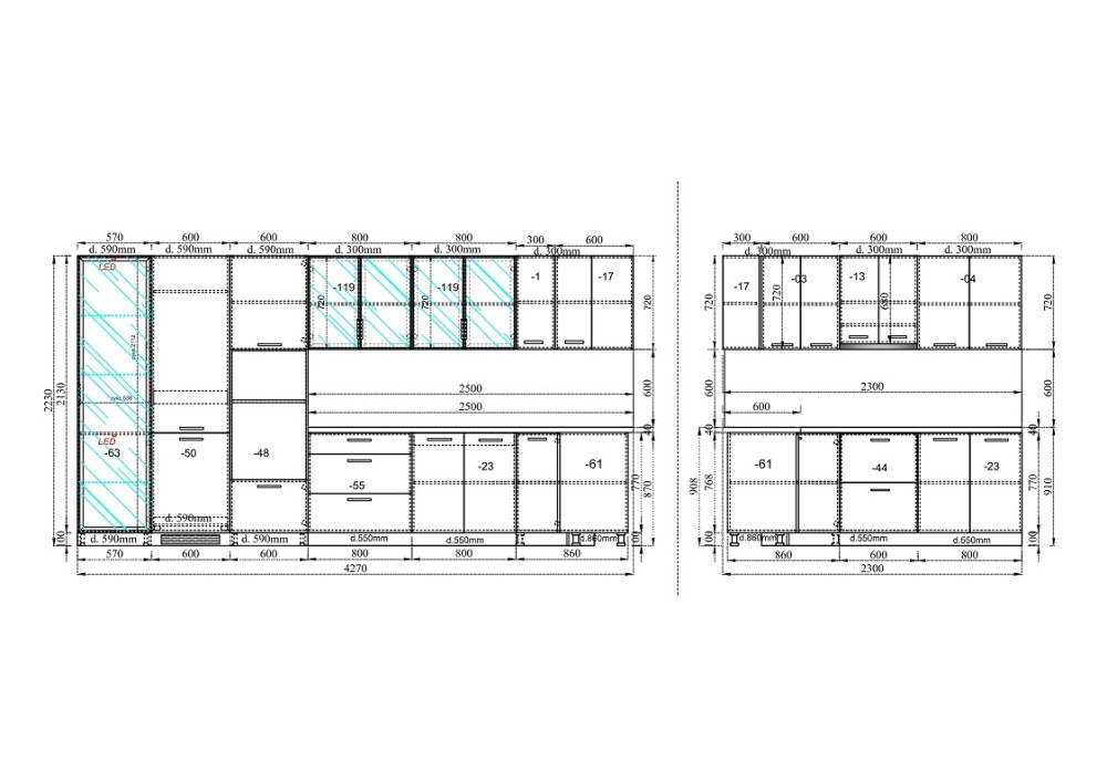
- Колонен модул със стъклена врата Алу глас и три стъклени рафта с LED Осветление МАЛ-63 - 57/59/223см.
- Колонен модул с възможност за вграждане на хладилик с височина 178см МФ-Деним мат-06-50 - 60/59/223см.
- Колонен модул с възможност за вграждане на фурна и микровълнова с височина 38см МФ-Деним мат-06 -48 - 60/59/223см.
- Долен модул с 3 чекмеджета със система InnoTech Altira плавно пребиране МФ-Деним мат-06-55 - 80/55/87см
- Два долни модула с две врати и плот, възможност за вграждане на мивка МФ-Деним мат-06-23 - 80/55/87см.
- Долен модул ъглов шкаф с врата и плот МФ-Деним мат-06-61 - 86/86/87см.
- Долен модул с два чекмеджета МФ-Деним мат-06-44 - 60/55/87см
Размери долен ред:
(дълбочина на шкафовете под плота – 55 см)
Термоплот:
- 250/60/3,8 см.
- 170/60/3,8 см.
Горен ред:
- Два горни модула със стъклени врати Алу глас и рафт МАЛ-119 - 80/30/72см.
- Горен модул с две врати и плот и възможност за вграждане на аспиратор с височина 13,5см. МФ-Деним мат-06-13 - 60/30/68см.
- Горен модул с врата и плот МФ-Деним мат-06-1 - 30/30/72см.
- Горен модул за ъгъл с врата и плот МФ-Деним мат-06-17 - 60/30/72см.
- Горен модул с две врати и плот МФ-Деним мат-06-3 - 60/30/72см.
- Горен модул с две врати и плот МФ-Деним мат-06-4 - 80/30/72см.
Размери горен ред:
Технически данни:
- Корпус: Мока ПДЧ 16 мм, кант 0.45 мм
- Лице: МДФ Деним мат 18мм
- Термоплот : мъглявина
- Дръжки: № 305 - 128мм
- Монтаж: към стената
PVC кокъл с алуминиево покритие - 3 комплекта
Важно:
В цената не са включени : термогръб, водобран, тапи и ъгли, присъединителна лайсна, декоративни елементи, мивка, батерия и електроуреди.
| Спецификация |
Стойност |
| Материал |
ПДЧ, МДФ |
| Цвят |
Деним мат |
| Размер(см) |
427 |