Гранитната мивка съчетава стилен дизайн, дълготрайност и функционалност. Композитният материал осигурява устойчивост на удари, надрасквания и горещи съдове, като в същото време придава елегантен вид на кухнята. Лесна за почистване и поддръжка, тази мивка е перфектният избор за модерния дом.
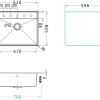
Брой корита: 1
Минимален шкаф: 70 cm
Монтиране: Вграждане над плота
Размери на коритото: 570 x 378 x 200 mm

| Спецификация | Стойност |
|---|---|
| Материал | |
| Цвят | |
| Размер(см) | |
| Вид инокс | |
| Цвят мивка | Бяло |