Кратко описание
Елегантната кухня Сити 9164 в комбинация МДФ Крийм гланц и Дъб натурал впечатлява с модерен дизайн, функционално разпределение и висококачествена изработка. Долният ред включва множество модули за вграждане на уреди, обширни шкафове и чекмеджета със система InnoTech Atira за плавно и безшумно прибиране. Горните шкафове в Дъб натурал придават топъл акцент и оформят балансиран визуален контраст с гланцовите фасади. Островът допълва пространството с допълнително място за съхранение и удобство, а термоплотът „Небула“ завършва модерната визия на цялата композиция.
Предимства:
- Модерен дизайн в стилна цветова комбинация
- Плавно затваряне на вратите
- Възможност за вграждане на мивка и уреди
- Функционални модули с оптимално разпределение
- Изработена от висококачествен МДФ
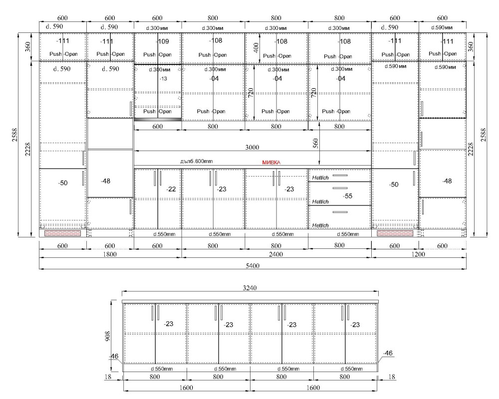
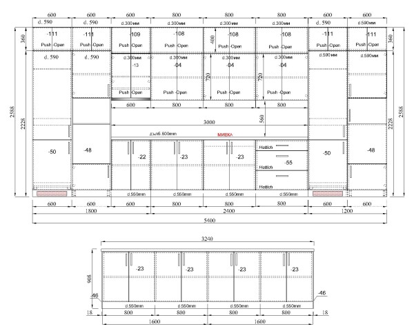
Долен ред:
- Два колонни модула с възможност за вграждане на хладилник с височина 178см МФ-Крийм гланц-11-50 - 60/59/223см.
- Два колонни модула с възможност за вграждане на фурна и микровълнова с височина 38см МФ-Крийм гланц-11-48 - 60/59/223см.
- Долен модул с две врати и плот, възможност за вграждане на мивка МФ-Крийм гланц-11-22 - 60/55/87см.
- Два долни модула с две врати и плот, възможност за вграждане на мивка МФ-Крийм гланц-11-23 - 80/55/87см.
- Долен модул с три чекмеджета и система InnoTech Atira Плавно пребиране МФ-Крийм гланц-11-55 - 80/55/87см.
Размери долен ред:
(дълбочина на шкафовете под плота – 55 см)
Остров:
- Четири долни модула с две врати и плот, възможност за вграждане на мивка МФ-Крийм гланц-11-23 - 80/55/87см.
- Два краини панела Ф-Крийм гланц-11-46 - 1,8/59/87см.
Размери остров:
(дълбочина на шкафовете под плота – 55 см)
Термоплот:
Горен ред:
- Горен модул за аспиратор с височина на вграждане 13,5см. МФ-Дъб натурал-12-13 - 60/30/68см.
- Три горни модула с две врати и рафт МФ-Дъб натурал-12-04 - 80/30/72см.
- Четири горни модула с две врати МФ-Крийм гланц-11-111 - 60/59/36см.
- Горен модул с две врати МФ-Крийм гланц-11-109 - 60/30/40см.
- Три горни модула с две врати МФ-Крийм гланц-11-108 - 80/30/40см.
Размери горен ред:
Технически данни:
- Корпус: Бяло гладко ПДЧ 16 мм, кант 0.45 мм
- Лице: МДФ Дъб натурал 12 18мм и МДФ Крийм гланц 18мм
- Термоплот : Небула
- Дръжки: №305 - 128мм
- Push to open
- Монтаж: към стената
PVC цокъл с алуминиево покритие - 4 комплекта
Важно:
В цената не са включени : термогръб, водобран, тапи и ъгли, присъединителна лайсна, декоративни елементи, мивка, батерия и електроуреди.
| Спецификация |
Стойност |
| Материал |
ПДЧ, МДФ |
| Цвят |
Криймм гланц, Дъб натурал |
| Размер(см) |
540 |