Стилната кухня в Сити 9120 впечатлява с минималистичен модерен дизайн и висококачествена изработка от МДФ. Модулите предлагат оптимална функционалност, включително възможност за вграждане на хладилник, фурна, микровълнова и мивка. Плавното затваряне на вратите и удобните чекмеджета осигуряват комфорт и дълготрайност в ежедневната употреба. Горните шкафове в Карбон мат придават елегантен акцент, а термоплотът в бял мрамор завършва цялостната визия.
Предимства:
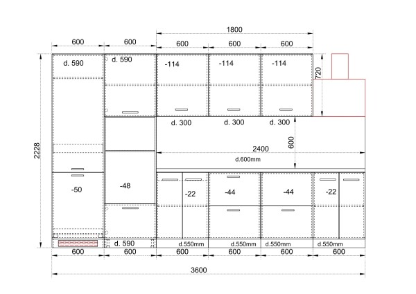
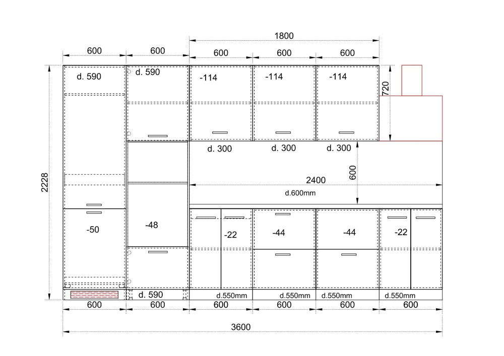
Долен ред:
Размери долен ред:
(дълбочина на шкафовете под плота – 55 см)
Термоплот:
Горен ред:
Размери горен ред:
Технически данни:
PVC цокъл с алуминиево покритие - 2 комплекта
Важно:
В цената не са включени : термогръб, водобран, тапи и ъгли, присъединителна лайсна, декоративни елементи, мивка, батерия и електроуреди.
| Спецификация | Стойност |
|---|---|
| Материал | ПДЧ, МДФ |
| Цвят | Карбон мат, Бяло гланц |
| Размер(см) | 360 |